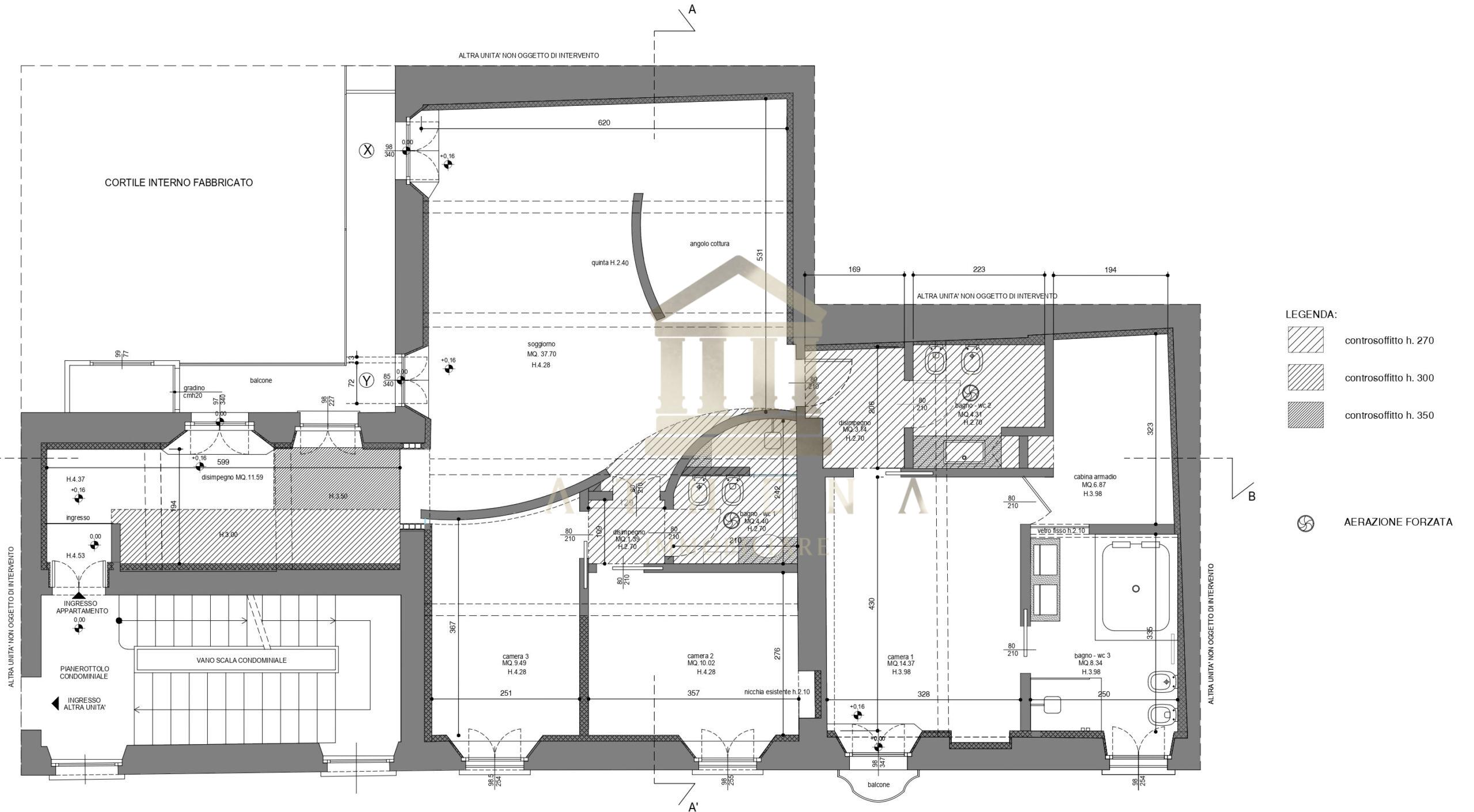
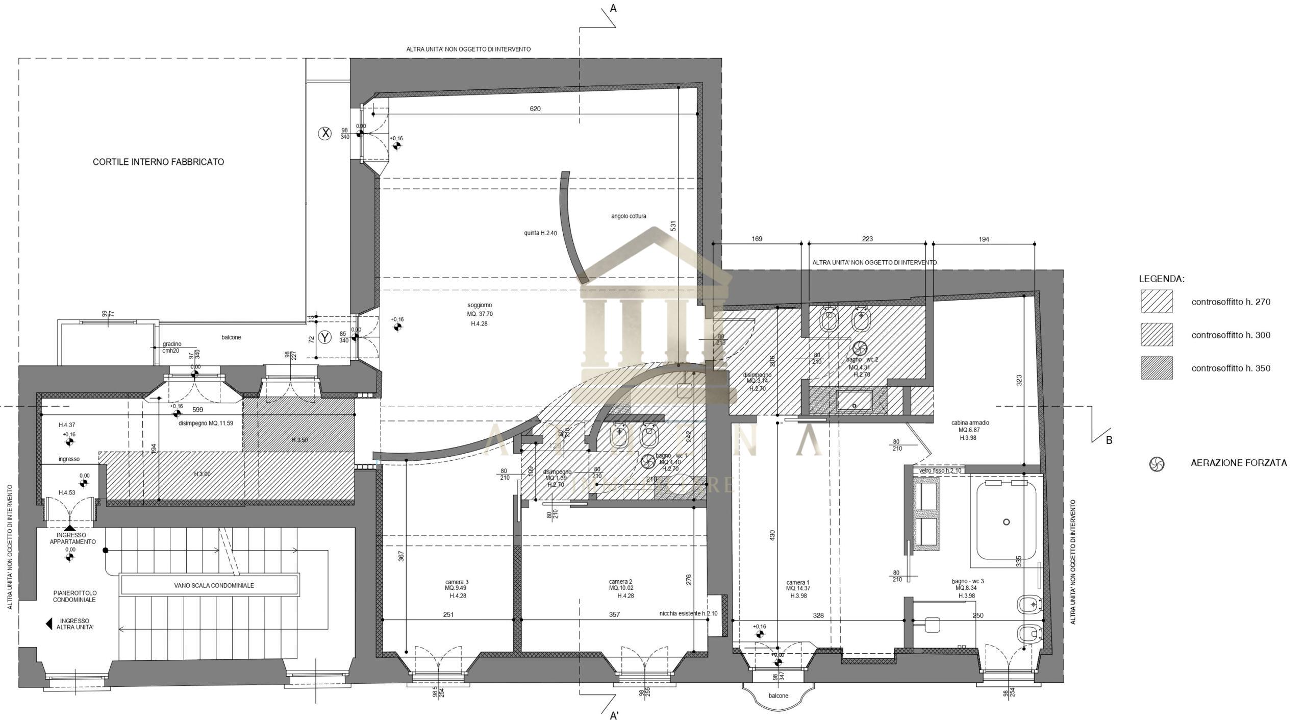
ATH103 CENTRO STORICO – QUADRILOCALE

€ 460.000

Descrizione

Eleganza Senza Tempo nel Cuore del Centro Storico

165 mq commerciali di pura potenzialità,

nel cuore pulsante della città, all’interno di un palazzo d’epoca recentemente e finemente restaurato, proponiamo in vendita un quadrilocale unico nel suo genere. Situata al primo piano nobile, la proprietà si distingue per altezze interne che conferiscono respiro ad ogni ambiente.

I Volumi della Luce

L’architettura interna è caratterizzata da soffitti che sfidano gli standard abitativi comuni, creando un’esperienza spaziale d’eccezione:

  • Zona Ingresso: un benvenuto scenografico con un’altezza di 4,40 mt.
  • Zona Giorno e Camere: ampi spazi di rappresentanza e relax con altezze di 4,30 mt.
  • Zona Notte Padronale: un rifugio intimo ma arioso con altezze di 4,00 mt.

Stato dell’Immobile e Potenzialità

L’alloggio è attualmente oggetto di una completa ristrutturazione. Con i lavori strutturali ed architettonici già approvati e avviati, la proprietà viene ceduta nello stato di fatto, quindi a rustico, offrendo al futuro acquirente il privilegio di personalizzare integralmente le finiture, la distribuzione degli impianti e i dettagli estetici, cucendosi addosso una dimora su misura.

Efficienza Energetica: Il progetto di ristrutturazione è stato studiato per raggiungere almeno una Classe Energetica B, un traguardo d’eccellenza per un immobile d’epoca nel centro storico, garantendo comfort termico e contenimento dei consumi.

In allegato, troverete l’ elaborato progettuale consigliato e studiato, pensato per valorizzare al massimo i volumi, ma la struttura e le sue finiture rimangono completamente personalizzabili: una tela bianca su cui dipingere la casa dei vostri sogni.

Si è ipotizzato

Caratteristiche Principali

  • Superficie: 165 mq commerciali ben distribuiti.
  • Composizione: Ampio living, cucina, tre camere da letto, tripli servizi e cabina armadio.
  • Spazi Esterni: Balcone privato con pratico locale deposito esterno.
  • Comfort: Riscaldamento termoautonomo e pertinenza di una cantina al piano interrato.
  • Contesto: Prestigioso palazzo storico con parti comuni recentemente riqualificate per la quasi totalità.

Una dimora ideale per chi cerca il fascino della storia unito alla libertà di creare un ambiente contemporaneo e sofisticato.

  • Tipo Immobile: Appartamento
  • Tipo Offerta: Vendita
  • Città: Pavia
  • Zona: Centro Storico
  • Classe Energetica Kwh/M2a: G 218,13
  • Spese condominiali: 1100 €

Planimetrie

Pianta